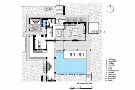
Πέτρινες κατασκευές Κατοικία Ανάβυσσος
Ένα ακόμα από τα πολλά project της εταρείας GR Stone, το συγκεκριμένο αφορά κατοικία στην Ανάβυσσο.
Ειδικευόμαστε στο σχεδιασμό επαγγελματικών χώρων, με πλήρως ενημερωμένο και έμπειρο προσωπικό αναλαμβάνουμε ανακατασκευή καταστημάτων, κατασκευές ξενοδοχείων και ξενοδοχειακών μονάδων κάθε τύπου, ανακαίνιση χώρων εστίασης, διακόσμηση εστιατορίων καθώς και ειδικές κατασκευές από πέτρα.



